
Nestled in Uptown New Orleans, 5349 Prytania Street is a beautifully preserved 1923 residence that exemplifies refined historic architecture blended with thoughtful modern renovations. This three-story urban sanctuary boasts classic features such as soaring 13-foot ceilings, original pocket doors, and hardwood floors, showcasing early 20th-century craftsmanship while offering contemporary comfort. Located steps from neighborhood landmarks and vibrant eateries, the home features expansive living spaces, a recently updated gourmet kitchen, and a detached guest apartment. The property provides off-street parking for two vehicles, appealing both in convenience and flexibility. Listed at $1,100,000, this century-old home delivers elegant living in a prime, culturally rich location, encapsulating the essence of New Orleans’ architectural and historical legacy.
Front Entrance

A welcoming brick staircase leads up to a classic front porch, flanked by lush greenery. Black iron railings frame the steps, guiding visitors toward a dark painted door framed by white siding. The façade features tall columns and large windows adorned with deep blue shutters, giving the home a stately, historic appeal. Black lantern-style sconces hang beside the door and on the porch, casting a soft, inviting light. Well-kept garden beds line the foot of the steps, and the leafy canopy above creates a shaded, intimate entryway, blending natural elements with timeless architectural charm.
Staircase Entryway

A brightly lit entryway features a central staircase with dark stained steps and white risers, creating dramatic contrast. Crisp white walls and trim frame the space, accentuated by long white curtains elegantly gathered on each side of the stairs. To the right, colorful stained glass windows infuse the space with artistic character, incorporating vivid red, yellow, blue, and green panes arranged in geometric patterns. Overhead, a gold-toned pendant light adds vintage flair. Dark hardwood floors extend throughout, visible through a wide doorway to the left that opens into a living area with soft neutral furnishings and a traditional red rug.
Dining Room Details

A spacious dining room with a minimalist aesthetic, featuring dark hardwood floors and soft gray walls accented by crisp white trim and crown molding. At the center stands a large, rustic wooden dining table placed atop a neutral woven area rug. Two tall windows allow natural light to brighten the space and flank a white decorative fireplace with a small mantle and a square inset above it. A mid-century side table with a potted plant sits against the left wall, while another leafy plant in a pot is on the right. Overhead, a brushed gold chandelier adds a modern, elegant touch.
Dining Room Table

A spacious and airy dining room featuring a light wood rectangular dining table surrounded by six upholstered chairs in a soft beige color. The walls are painted a light gray, creating a bright and neutral backdrop complemented by white trim and crown molding. The dark hardwood floor contrasts elegantly with a pale patterned area rug under the table. Large windows allow natural light to fill the room, while two potted green plants add a touch of nature on each side. A modern gold chandelier hangs above the table, and framed artwork decorates the wall, lending a sophisticated yet welcoming ambiance.
Dining Room Entry

A light-filled dining area features a natural wood table set atop a light rug, centered under a gold chandelier with elegant detailing. The walls are painted a soft gray with crisp white moulding creating striking contrasts. Wide doorways lead to adjacent rooms, enhancing a sense of openness. To the left, there is a glimpse of a colorful sitting room with patterned chairs and a vibrant rug. Straight ahead, a staircase with a dark railing and white risers climbs past a large window adorned with stained glass inserts in green, red, and amber. Subtle potted plants add touches of greenery and warmth.
Living Room Details

A spacious living room with soft gray walls and crisp white trim, accented by high ceilings and crown molding. Two large double-hung windows let in natural light, highlighting a plush off-white sectional sofa layered with tan and black patterned throw pillows. A sage green armchair with a star pattern adds character beside the sofa. An ornate gold-framed mirror is mounted on the left wall above a white radiator cover. A geometric cream rug anchors the seating area on rich, dark wood floors. Overhead, a classic crystal chandelier brings historic elegance. The adjoining dining area is visible through a wide doorway.
Powder Room Details

This compact bathroom is adorned with contemporary, silver-grey geometric wallpaper covering both the walls and sloped ceiling, creating a cohesive and stylish look. A round, beveled-edge mirror hangs above a white marble countertop and vanity, which feature brushed nickel hardware and a sleek undermount sink. The porcelain toilet is positioned beside a large window framed with white trim, showcasing hand-painted floral and script designs in bright red, orange, and blue. Black stained wood floors add contrast to the otherwise light color palette, while recessed ceiling lighting provides bright, even illumination throughout the space.
Breakfast Nook

A cozy breakfast nook featuring built-in white cabinetry lining the left wall, providing ample storage space. A cushioned L-shaped bench with patterned upholstery wraps around two walls, creating a comfortable seating area around a simple white rectangular table with turned legs. A window in the center allows natural light to brighten the space, and the walls are painted a soft gray, enhancing the tranquil atmosphere. Recessed ceiling lights and a modern chandelier with exposed bulbs contribute to a blend of traditional and contemporary styles. The dark wood floor contrasts elegantly with the light cabinetry and walls, adding warmth to the room.
Kitchen Details

A bright, modern kitchen featuring crisp white cabinetry with glass-paneled upper units, stainless steel appliances including a French door refrigerator, dishwasher, double wall oven, and a sleek gas range with a metallic hood. The walls are painted a soft gray, complemented by a white tile backsplash and wide dark hardwood floors for contrast. A deep farmhouse sink sits beneath a window, allowing natural light to brighten the countertops. Above, a trio of pendant lights in a warm metallic finish adds elegance and warmth, while the adjacent space opens to a cozy living area with vintage-inspired furniture.
Kitchen Appliances

A kitchen with a clean and sophisticated style featuring white cabinetry and a dark wood floor. Stainless steel appliances, including a built-in oven and microwave, are stacked vertically next to a modern range and a matching hood vent. The backsplash consists of delicate, white diamond-patterned tiles, lending a subtle texture to the walls. Upper cabinets with glass doors reveal open shelving, while a farmhouse-style stainless steel sink sits beneath a large window, letting in abundant natural light. The overall palette is neutral and bright, combining classic elegance with contemporary accents.
Bathroom Vanity and Shower

A stylish bathroom features a marble-topped vanity with blue-gray cabinetry and double bronze faucets, set against a backdrop of soft gray walls. A large framed mirror sits above the sink, flanked by two wall-mounted glass sconces that add warm, ambient lighting. To the right, a spacious glass-enclosed shower showcases patterned gray and white tiles in a Moroccan-inspired design, also forming a built-in bench. The flooring is pale wood-look tile, providing a clean, contemporary foundation. The aesthetic blends modern elegance with subtle historic charm, emphasizing clean lines, cool tones, and quality materials.
Bedroom Suite

Spacious bedroom with high ceilings and elegant architectural details, including crisp white trim and paneled doors. The walls are painted a soft gray, providing a serene contrast to the dark polished wood floors. A plush bed, layered with textured blankets and an array of pillows, sits on a pale patterned rug. To one side, a tall mirror leans against the wall near a white mantle. A set of double doors open to a luxurious bathroom featuring marble tile, a glass-walled shower, and brass fixtures. Natural light enhances the airy feel of the room, blending comfort with historical charm.
Bedroom Suite

A spacious bedroom features a plush, tufted grey bed set against a soft gray wall, topped with layered, neutral-toned bedding and accent pillows. A diamond-patterned area rug sits beneath the bed, with a quilted bench at the foot. The walls are adorned with modern art and a floral painting above the bed. Elegant white panel doors, topped with transoms, lead to a walk-in closet and an en-suite bathroom. The bathroom, bright with marble tile, includes a glass walk-in shower and a white bench, while crown molding, dark hardwood floors, and recessed lighting add a touch of classic refinement.
Bathroom Vanity

This bathroom features a double-sink white vanity with marble countertops and modern brushed-nickel faucets. Above the sinks, a large mirror is flanked by a row of four art deco-inspired light fixtures, adding brightness and elegance. The walls are painted in a soft, neutral gray, complementing the light marble tiles that surround the built-in bathtub. Above the tub, a small television is embedded in the marble wall for luxury. The room is illuminated by natural light streaming through two large windows with classic blue shutters, giving the space an airy and refreshing feel.
Staircase Landing

A hallway and staircase area with dark-stained hardwood floors and bright white trim. The staircase features ornate white spindles and a contrasting dark wood handrail, giving a classic look to the space. Soft gray walls create a calm, neutral backdrop, complemented by brass wall sconces with beige lampshades that add warmth and a touch of elegance. At the end of the hallway, a doorway leads into another room with a patterned accent wall visible in the distance. Traditional detailing and balanced, clean lines highlight the historic charm of the home while still feeling fresh and updated.
Bedroom Corner

A serene corner of a bedroom with light gray walls and two tall windows framed with bright white molding, allowing natural light and leafy outdoor views to fill the space. The centerpiece is a plush, upholstered bed with a scalloped headboard, dressed in a neutral quilt and soft, textured pillows in blush tones. A layered vintage-style rug adds muted color and warmth over dark, glossy hardwood floors. Minimalist floating white shelves are mounted on the walls near the bed, and an ornate chandelier with colorful glass drops hangs from the high ceiling, adding a touch of whimsy and historic charm.
Fireplace Corner

A bright, airy corner of a historic home features a small fireplace framed by a white mantle and detailed green tilework, topped by clean lines. The tiles showcase various shades of green, lending a touch of vibrancy amid the soft gray walls. A potted plant sits inside the empty hearth, adding an organic element. The dark, glossy hardwood floors contrast with the lighter wall and trim colors, creating a sense of depth. An open doorway reveals a glimpse of a staircase with a white spindled railing, hinting at the classic architectural style carried throughout the house.
Bedroom Balcony Doorway

This space features tall ceilings and light gray walls that convey a sense of airiness and simplicity. The dark hardwood floors add contrast and warmth to the otherwise neutral palette. Large windows with wide white trim allow generous natural light, and one window opens onto a small balcony through classic double shutters. A small closet door provides storage, while the corner of an elegant white fireplace adds a touch of historic charm, highlighted by green decorative tiles. Overall, the room blends minimalism with period architectural details, creating a serene and inviting atmosphere.
Bedroom Nook

This space features soft gray carpet and light gray walls under a sloped ceiling, indicative of an upper-story nook or small bedroom. A double-hung window with white framing allows natural light to pour in and provides a view of lush greenery outside. Beneath the window, a built-in bench or ledge runs along the wall, offering potential seating or storage. The room connects via a doorway to another area, possibly a closet or adjacent room. Clean white crown molding and baseboard trim lines the perimeter, complemented by a modern brass and fabric drum-style ceiling light fixture.
Bathroom Tub Area

A contemporary bathroom featuring a built-in white bathtub with clean, sharp lines set against a striking accent wall of textured, pebble-patterned tiles in varying shades of gray. The tub has a modern, dark bronze shower fixture and a small wooden stool adjacent to it for convenience. To the left, there is a long vanity with multiple drawers, a dark granite countertop, and a vessel sink with a sleek, brushed bronze faucet. The space is illuminated by recessed ceiling lights, and neutral color tones, white cabinetry, and gray tile flooring contribute to a tranquil, spa-like atmosphere. An open doorway leads to a softly carpeted adjacent room.
Bedroom Nook

This cozy upper-level bedroom features a sloped ceiling that creates an intimate, attic-like atmosphere. The room is painted a soft, calming gray with crisp white trim, while sunlight streams in through a single window overlooking greenery outside. A plush, light pink chaise lounge bed with white bedding sits in the corner under the angled ceiling, offering a pop of color against the neutral background. The ornate white decorative fireplace adds historic charm, and the muted gray carpet enhances comfort. A brass drum ceiling fixture provides warm overhead lighting, and a flat-screen television is mounted on the adjacent wall near an open doorway to a bathroom.
Front Porch Details

A spacious front porch features a light gray painted floor and crisp white horizontal siding with elegant dark blue shutters framing twin windows. A pair of striking black outdoor lantern lights are mounted near the doorway, providing classic charm. Hanging from the ceiling, a black porch swing offers a relaxing spot overlooking greenery outside. The porch is anchored by wide white columns and includes a rectangular, modern white planter with leafy green plants, adding a touch of nature. The overall atmosphere is inviting and tranquil, blending traditional American architecture with subtle contemporary accents.
Back Entryway

A quaint exterior entryway of a historic home featuring cream-colored horizontal siding and a bold navy-blue door accessed by a small stone step. To the left, a tan outbuilding stands parallel, separated by a lattice trellis and a flowerbed edged with green shrubs. Next to the door is a rectangular window with a planter box brimming with greenery. A black outdoor lantern hangs overhead, adding vintage charm. The ground is a mix of stone pavers and mulched garden beds, with dark privacy fencing and lush trees framing the secluded, peaceful atmosphere of the space.
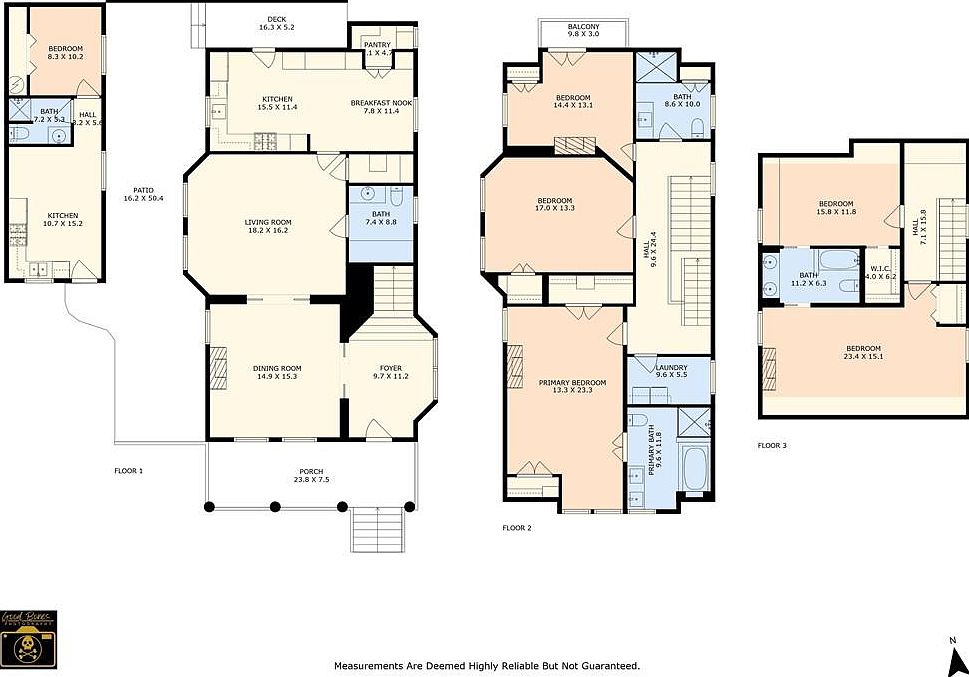
Home Layout Overview

Large three-story historic home featuring spacious, well-defined rooms on each floor. The first floor includes a formal dining room, living room, generous foyer, kitchen, breakfast nook, bathroom, bedroom, and access to a patio and porch. The second floor has a balanced layout with a primary bedroom suite, additional bedrooms, bathrooms, laundry area, and balcony access. The third floor is primarily bedrooms and bathrooms, with an expansive primary suite featuring a walk-in closet. Classic architectural details, clear flow between common spaces, and private bedroom clusters characterize the floor plan, revealing a practical and elegant early American home design.
Bathroom Vanity and Shower

A compact bathroom with a clean, contemporary aesthetic featuring a white vanity with a single sink and curved bronze faucet, topped by an oval-framed mirror mounted on a soft gray wall. The shower area, separated by a partial white wall, has a built-in niche for toiletries and is paired with a matching bronze showerhead. A white toilet sits adjacent to a small wall-mounted storage cabinet with panel doors, providing additional storage. The room’s palette consists of light gray walls, bright white fixtures, and dark charcoal floor tiles, creating a crisp, modern, and serene environment.
Small Bedroom

Compact bedroom featuring soft gray walls and dark wood-look tile flooring. A single bed with a sage green vertically tufted headboard occupies most of the space, covered in a muted gray-green comforter and set with two neutral pillows. Natural light streams in from a window to the right, showcasing leafy greenery outside and adding brightness to the room. Clean white trim frames the window and baseboards, while a white closet with paneled doors is set into the left wall. Exposed ceiling beams add architectural interest, and the overall feel is simple, calm, and uncluttered, emphasizing a minimalistic, modern style.
Kitchen Hallway

A spacious kitchen hallway features sleek gray tile flooring arranged in a staggered pattern, leading toward a softly illuminated bedroom. Stainless steel appliances, including a double-door refrigerator with a water dispenser and a gas range, add a modern touch against crisp white cabinetry. The soft gray and white color palette creates an airy, clean atmosphere. Two woven chairs with wooden seats sit against the muted wall, offering a simple seating area. Overhead, a warm-toned light fixture complements the cool tones below. A glimpse into the next room reveals a cozy bed with a teal velvet headboard and soft bedding, framed by a white door.
Listing Agent: Mary Cullen of RE/MAX N.O. Properties via Zillow



